You’ve been staring at your floor plans for weeks, and it still doesn’t feel right.

Your still questionning if everything is in the right place and if your home works for your daily life.

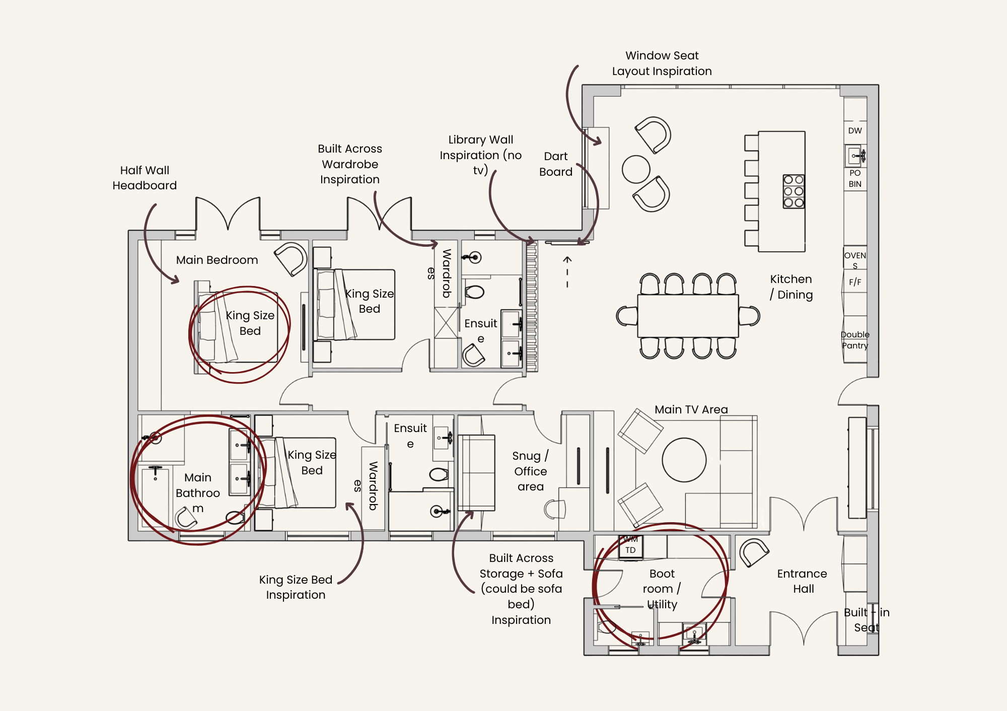
It’s also missing the detail, how you’ll live, how you cook, where you’ll host family and friends, and where the kids will sit and do their homework.

And this is why I always encourage people to reach out to an interior designer earlier than they think. A good layout is shaped right from the start, before you go to planning.

That’s where Curated Spaces 2.0 comes in.

As an interior designer, I look at space differently. I help you understand how your home will work day to day.

We’ll talk about you, what your home needs to make living in it easier, then I’ll strategically design your new layout based on your lifestyle and brief.

Clients often tell me it’s the first time they can see their home coming together. The decisions feel clear, and they finally feel confident about what they’re building.

Everything is handled remotely, and we work with clients across the UK and worldwide.

Keep scrolling to learn exactly how I can help…

  • ‘It's amazing! I'm honestly in awe of what you've manged to do! We all think it's fantastic! There are so many wonderful ideas in it and everything flows so beautifully! I especially love the bookcase and darts area, it's inspired! All amazing and well thought out ideas that I would never have even dreamed of!’

    C - Beaconsfield

  • 'I was really disappointed when our architect’s plans came through, it felt like there’d been no thought about how we’d actually live in the space or where anything would go! Finding you was such a relief. It’s been so helpful, and we’ve finally agreed on a layout that truly works for us and the way we live. The fact that you actually asked questions about what we do and how we cook, it's incredible!'

    T - Leamington

  • 'I’m going to throw my husband under the bus here, to say he was dubious is an understatement! He just didn’t get it when I said our previous plans weren’t working. Now he’s the first to admit he was wrong. Not only did you make the overall build smaller, but we finally have a real understanding of our space and how we’ll use it. Thank you!'

    P - Southampton

What We Need to Get Started

  • Send over your existing layout so we can review what you’re working with.

  • I’ll then send you a short questionnaire to help define your brief and understand your home and priorities.

The Process

  • Once we receive your questionnaire and layout, we’ll arrange a 30–45 minute call to discuss your goals and any existing challenges.

  • Within three weeks, we’ll send back your revised layout with our proposed improvements.

  • You’ll then have the chance to add comments or mark-ups, which we’ll review before sending your final layout.

What You’ll Receive

  • Your final layout, provided two weeks after we receive your feedback.

  • A recorded Loom video where we walk you through your plan — explaining how the design has been developed, what’s changed, and why.

  • A to-scale PDF layout with measurements and inspirational images, ready to share with your trades.

I’ve included a few before-and-after sliders below, showcasing real client transformations, so you can see just how powerful a well-planned layout can be.

What’s Your Investment & Why We Price Per Floor?

You can focus on just one level, like your ground or first floor, or opt for a full-home review, which is recommended.

We price per floor because layout issues rarely exist in isolation, even small tweaks, like moving a door, can transform how the whole space flows. That’s why all rooms on that floor are included in the scope, ensuring everything works together seamlessly.

Up to 72 sqm - £999

Up to 94 sqm - £1,249

Up to 118 sqm - £1,499

Up to 162 sqm - £1,999

Up to 204 sqm - £2,499

Up to 218 sqm - £2,999

Up to 292 sqm - £3,499

Up to 336 sqm - £3,999

Up to 379 sqm - £4,499

Up to 421 sqm - £4,999

Over 421 sqm - POA

Please note are prices are inclusive of 20% VAT.

We’re now taking bookings for March.

For an accurate quote, please submit your existing drawings using the form below. We’ll review your plans, confirm which band applies, and confirm the next available date to kick off your project.

Let's Get Started

Additional Support

  • Site Visit

    If you live in an older property and would like to me to come and see the space I can, even if you’re a little further away I can often tie in a few visits at once, so don’t hesitate to ask.

    £389 (VAT INCLUDED)

  • Lighting & Electric Plan

    Desperate to avoid rows of spotlights? My lighting and electric plan goes hand in hand with your layout, I can plan a bespoke design for you.

    £12 per SQM. (VAT INCLUDED)

 FAQs

  • If you are definitely extending, working with us before you submit planning is a must.

    Curated Spaces sits after the external footprint has been agreed and before you move into detailed technical drawings or structural calculations.

    If you’re in a conservation area, your architect or technician will develop the external design first, ensuring the proposal works within planning rules, right-to-light and local constraints.

    Once the footprint is approved or agreed in principle, that’s the ideal time for us to optimise the internal layout before anything becomes fixed.

  • Yes, we do. If you’ve already submitted your floor plans and received your bespoke proposal, we offer a quick 20-minute call to go through any questions you might have.

    If, after reviewing your plans, I don’t think a full layout redesign is the right fit, I’ll always be upfront and suggest a more suitable option, usually my Meet With Me service, which is ideal for smaller tweaks or focused advice.

    But if you have any questions in the meantime, please don’t hesitate to reach out via admin@studiosmithinteriors.co.uk and we’ll be happy to help.

  • Not all, but a lot of architects focus on structure, walls, windows, and compliance. Whereas our focus is on how you’ll actually live in the space.

    A Curated Spaces layout considers flow, furniture placement, storage, and the small day-to-day details that make a home work effortlessly.

    You can see the level of detailed provided in our plans in the before/after above.

  • If you’d like to continue working together after your final layout, I can support you with lighting and electrical drawings, bespoke joinery design, or even move into a full design service to develop finishes, furnishings, and specifications.

  • This isn’t rows and rows of spotlights, which is usually offered with a more generic lighting plan.

    Our approach looks at how you’ll actually use the space, where you’ll need task lighting, ambient light, and the best placement for wall lights, pendants, sockets, and dimmers.

    It’s a more thoughtful, design-led process, tailored to your final layout and the way you live. That level of detail (and the time it takes to get it right) is reflected in the cost.

  • Please submit your current plans through the contact form on our website.

    Once we’ve reviewed them, we’ll confirm your quote based on the areas you’d like to focus on, once you’ve accepted the proposal there is a short questionnaire to help define your brief and priorities. From there, we’ll book your call and get started on your new layout.